47
$410,000 Sale
Listed 185 days ago
270 Grouse Avenue
· 3
· 2.5
· 3
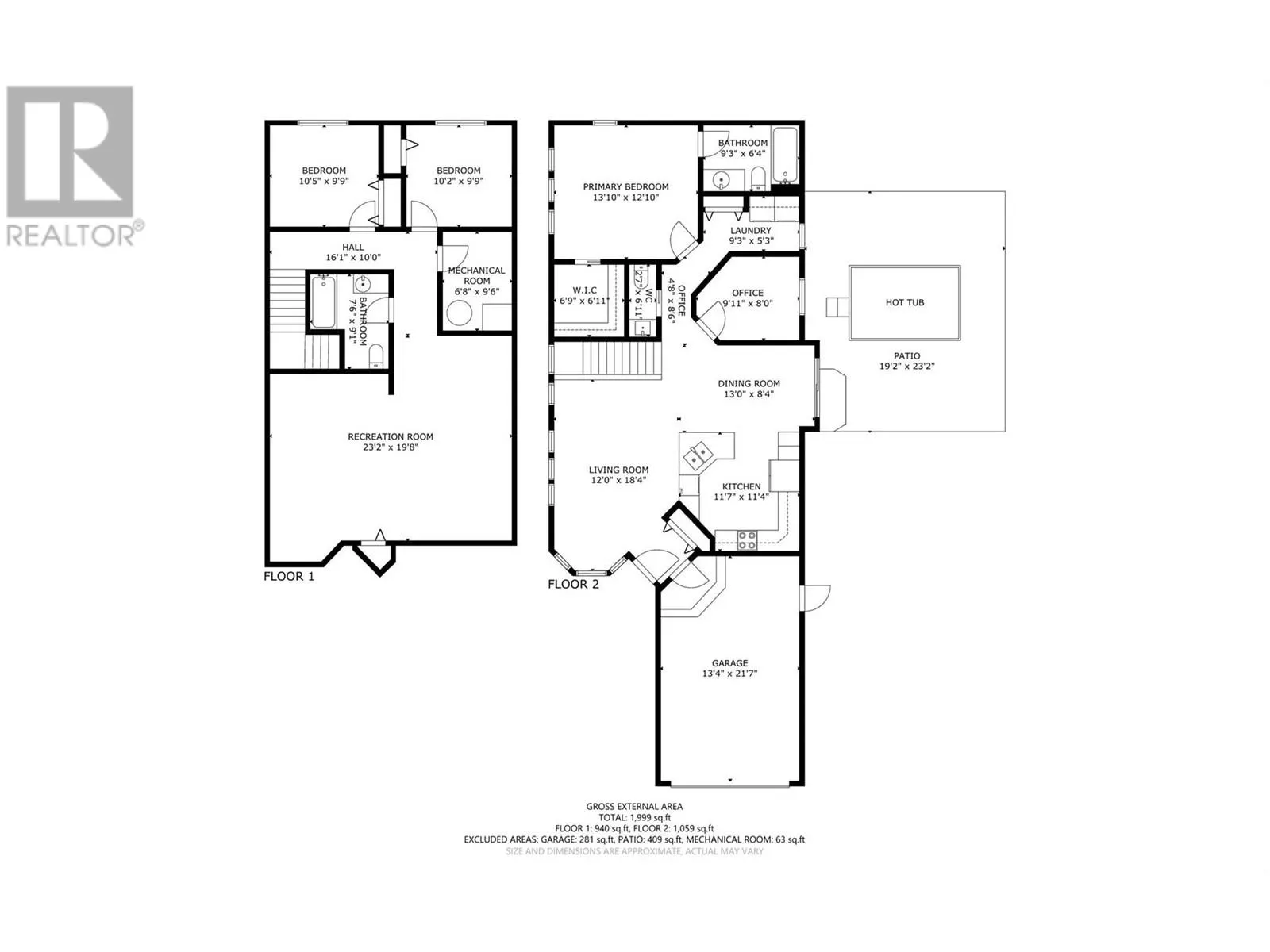
· 2100
Key Facts
Key facts for 270 Grouse Avenue
Property Type
House, House
Parking
Garage: Yes, 3 parking
MLS #
10341307
Size
2100 sqft
Basement
Full
Listed on
-
Lot size
-
Tax
-
Days on Market
-
Year Built
2014
Maintenance Fee
-
Description
Welcome to 270 Grouse Avenue in Parker Cove! This immaculate home is situated on a well-manicured corner lot, offering an inviting environment for you and your family. Step inside to discover a spacious main floor with a bright living room that seamlessly flows into a fabulous kitchen equipped with ...stainless steel appliances, an island perfect for casual meals, and ample storage space. The large master bedroom boasts a generous walk-in closet and a full en-suite bathroom, providing a private retreat. Additionally, you'll find a cozy den, a convenient laundry area, and a stylish 2-piece bath on the main level. The lower level offers a huge family room, providing plenty of space for relaxation or entertainment, along with two comfortable bedrooms and a full bath for guests or family members. The property is packed with features to enhance your living experience, including underground sprinklers for easy lawn maintenance, a heat pump for year-round comfort, an attached garage for your convenience, and a covered side patio — ideal for enjoying outdoor meals or morning coffee. There's even built-in vacuum with a handy crumb catcher in the kitchen. This home is available on an annual lease of $3,455.83, which is registered until 2043, making it an attractive option for budget-conscious buyers. Residents of Parker Cove also enjoy access to over 2,000 feet of pristine Okanagan Lakefront, complete with a playground near the beach, perfect for families and outdoor enthusiasts alike. With its spacious layout, great features, and desirable location, this well-maintained home in Parker Cove offers great value. The seller will consider all reasonable offers. (id:10452)
Similar Properties (No results)
Room Types
2pc Bathroom
-
Measurements not available
0 sqft
4pc Bathroom
-
Measurements not available
0 sqft
4pc Ensuite bath
-
Measurements not available
0 sqft
Listing courtesy of: RE/MAX Vernon
This REALTOR.ca listing content is owned and licensed by REALTOR® members of The Canadian Real Estate Association.