40
$2,798,000 Sale
Listed 5 hours ago
26 HOLDOM AVENUE
· 6
· 6.0
· 2
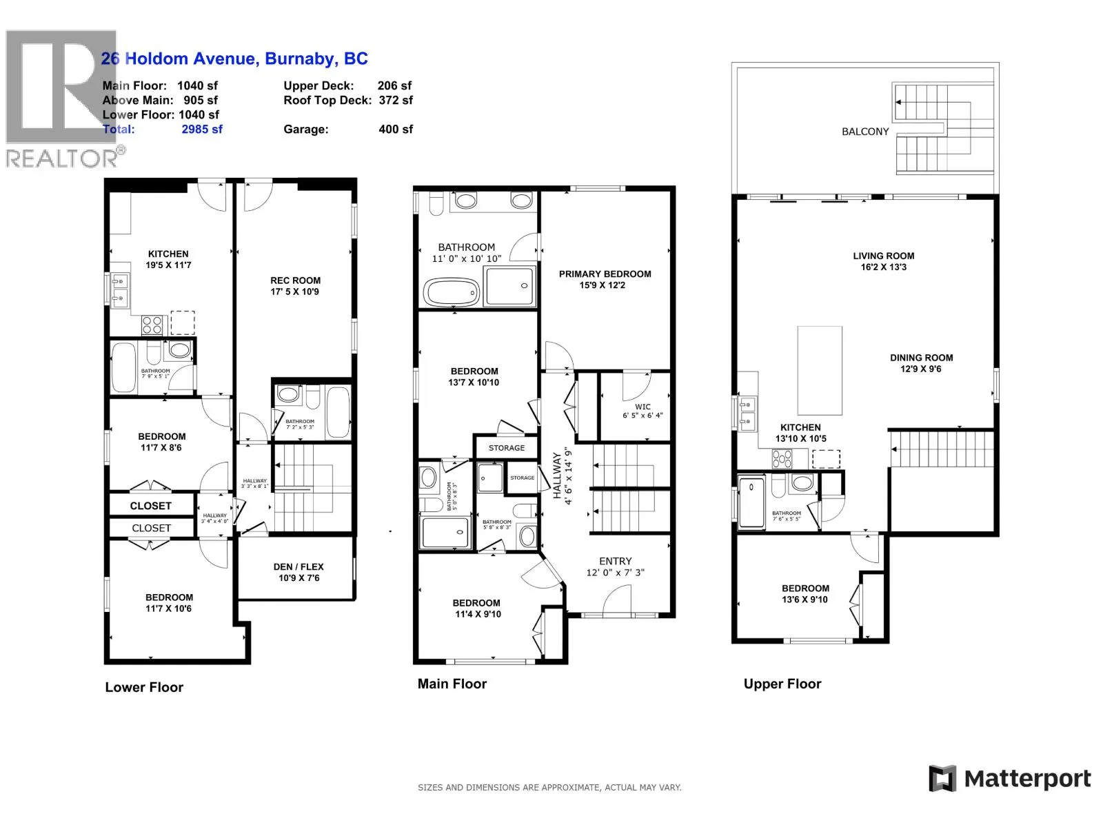
· 2985
Key Facts
Key facts for 26 HOLDOM AVENUE
Property Type
House, House
Parking
Garage: Yes, 2 parking
MLS #
R3061328
Size
2985 sqft
Basement
Unknown, Full (Unknown)
Listed on
-
Lot size
-
Tax
-
Days on Market
-
Year Built
2021
Maintenance Fee
-
Description
Exceptional 6 bed, 6 full bath home offers breathtaking views of Mt Baker & Burrard Inlet from 3 levels. Chef´s kitchen boasts premium Bosch appliances, double wall oven, oversized island & ample cabinetry. Enjoy seamless indoor/outdoor living w/a covered deck(gas BBQ/heater hookups) & rooftop patio... w/gas fire pit hookup & sweeping water & mountain VIEWS! The luxurious primary suite feat a spa-inspired ensuite w/dual vanity, oversized rain shower & deep soaker tub. Smart home feat inc Control4 automation, A/C, radiant heating, smart thermostats, video security, and b/i central vac. The lower level incl a spacious family rm, flex space w/separate entrance, and a newer legal 2 bed suite complete w/kitch & laundry,ideal for rental or extended family. Bonus EV level 2 charging! Shows like NEW! (id:10452)
Similar Properties (No results)
Listing courtesy of: Stonehaus Realty Corp.
This REALTOR.ca listing content is owned and licensed by REALTOR® members of The Canadian Real Estate Association.